HOME | 売りたい・買いたい(J-FeeL) | サーパス新屋敷402号室
サーパス新屋敷402号室
【おすすめポイント】
◆3LDKリフォーム完了物件!
◆陽当り良好!
◆中心部へのアクセスが便利なエリア
部屋の写真・間取り図
| 住所 交通 |
専有面積 間取り |
向き | 竣工 | 価格 |
|---|---|---|---|---|
| 岡山市北区新屋敷町2丁目 山陽本線「岡山駅」徒歩22分 岡電バス「大供新屋敷」バス停まで3分 |
70.47㎡(壁芯) 3LDK |
南 | 1999年11月 | 2,690万円 |
情報提供日:2025/11/5 次回更新予定日:次回更新日は情報更新日より15日以内
【共有設備】
・エレベーター
・オートロック
・防犯カメラ
・宅配ボックス
・バイク置き場
・駐輪場
【部屋の特徴】
・温水洗浄便座
・浴室乾燥機
・シャンプードレッサー
・システムキッチン3口コンロ
・カウンターキッチン
物件概要
| 名称 | サーパス新屋敷町402 | 駐車場 | 近隣確保 8,000円/月 100m圏内 |
|---|---|---|---|
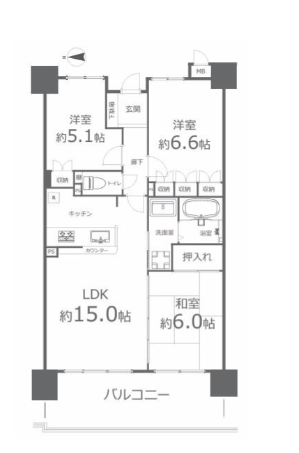
| 構造 | 鉄骨鉄筋コンクリート造 | 間取り詳細 | 3LDK LDK15.0帖 洋室5.1帖 洋室6.6帖 和室6.0帖 |
| 所在階/階数(全戸数) | 4階/地上14階(全82戸) | 管理費 修繕積立金 |
4,400円/月 10,900円/月 |
| 専有面積 | 70.47㎡(21.32坪) バルコニー12.9㎡(3.90坪) | 学区 | 鹿田小学校 桑田中学校 |
| 引渡 現状 |
相談 空家 |
管理会社 | (株)穴吹コミュニティ |
| その他 | 上下水道 都市ガス |
||
| 備考 | 【2025年6月リフォーム完了】 ◆システムキッチン新規交換 ◆ユニットバス新規交換 ◆浴室乾燥機新規設置 ◆洗面化粧台新規交換 ◆洗濯機防水パン新規交換 ◆温水洗浄機能付トイレ新規交換 ◆床フローリング張替え ◆壁・天井クロス張替え ◆ガス給湯器交換 ◆LEDシーリングライト新規取付 ◆LEDセンサーライト新規設置 ◆LEDダウンライト新規設置 ◆カーテンレール交換 ◆ハウスクリーニング 他 |
||
周辺環境・地図
| 周辺情報 | ■生鮮市場きむら 徒歩7分 ■厚生病院 徒歩5分 ■新屋敷公園 徒歩3分 |
|---|






























